IMMO DUFLOT Agence
Télécharger la fiche
Exclusivité Nouveauté

Maison de village 6 pièce(s) 3 chambre(s) 180 m²

Saint-Amand-les-Eaux (59230)
264 500 € Référence 020

A propos de ce bien

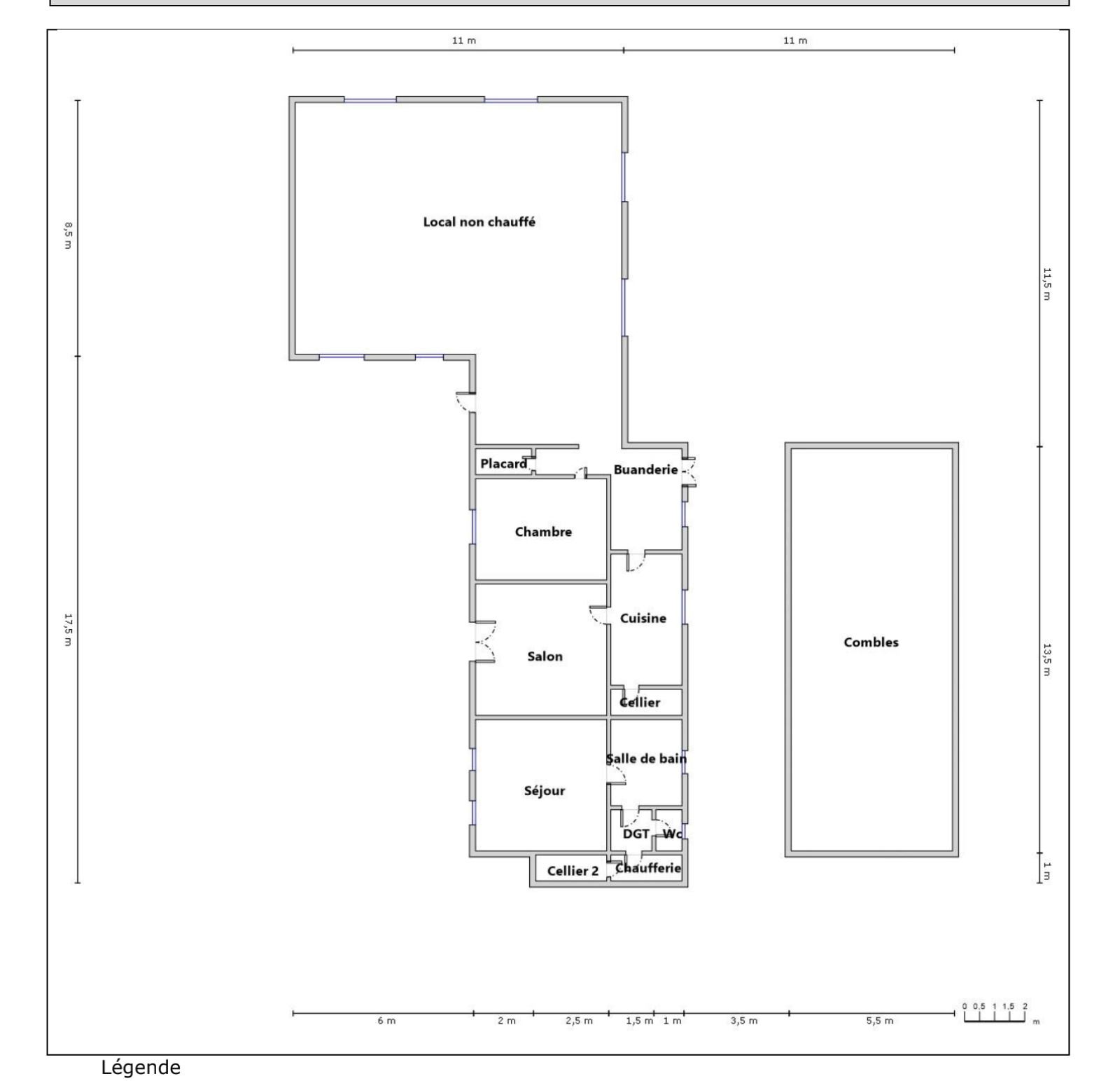
L'agence Immo Duflot de St amand les eaux vous propose en exclusivité cette maison individuelle plain pied, à fort potentiel (possibilité 180 m2 habitables), nichée sur une parcelle de 2 200 m², au calme et sans aucun vis-à-vis, du coté de Lecelles. Elle se compose : - D’une grande pièce de vie neuve de 100 m², permettant d'aménager un hall d’entrée, grand espace ouvert salon-salle à manger, cuisine, wc et suite parentale (ou 2 chambres). - D’une partie à réaménager dans la partie longère comprenant cuisine, salon, salle à manger et une chambre, salle d'eau avec baignoire et douche, et WC : possibilité d'aménager en 3 chambres et une grande salle d'eau familiale ou en 2 gites pour les curistes ou autre location. Bénéficiez également : - d'une terrasse exposée plein sud, - d'un jardin arboré sans vis-à-vis avec vue dégagée sur la campagne, - d'un stationnement privatif devant la maison et sécurisé avec portail. Autres atouts : menuiseries neuves avec facture et garantie (dont 4 baies vitrées), toiture extension neuve, certains matériaux fournis (tableau électrique Legrand, VMC…), tout à l'égout (facture), fibre optique, faible taxe foncière… DPE en E en raison de la grande pièce isolée mais non chauffée. Audit disponible lors de la visite. Photos complémentaires sur notre site immoduflot.fr
Les informations sur les risques auxquels ce bien est exposé sont disponibles sur le site Géorisques

Caractéristiques de ce bien

  • Surface 180 m²
  • carrez 180 m²
  • terrain 2 216 m²
  • séjour 90 m²
  • 3 chambre(s)
  • 1 salle(s) d'eau
  • Chauffage : ()
  • 4 parking(s)
  • exposition Sud-Ouest
  • 1 niveau(x)
  • vue Sur champs

Diagnostics énergétiques

DPE
GES

Montant estimé des dépenses annuelles d'énergie pour un usage standard est compris entre 2 050 € et 2 820 € . Prix moyens des énergies indexés sur les années 2021, 2022 et 2023 (abonnements compris).

Informations financières

Prix de vente 264 500 € Les honoraires d'agence seront intégralement à la charge du vendeur
Taxe foncière annuelle 788 €

Calcul des mensualités

* Champs obligatoires